15 Aunums Close, Thornton-Le-Dale
£450,000
3 Bed Bungalow - Detached for sale
3 Beds
2 Baths
2 Receptions
Tenure: Freehold
Features
- Newly refurbished bungalow
- Offered for sale chain free
- South facing rear aspects
- Generous rear extension
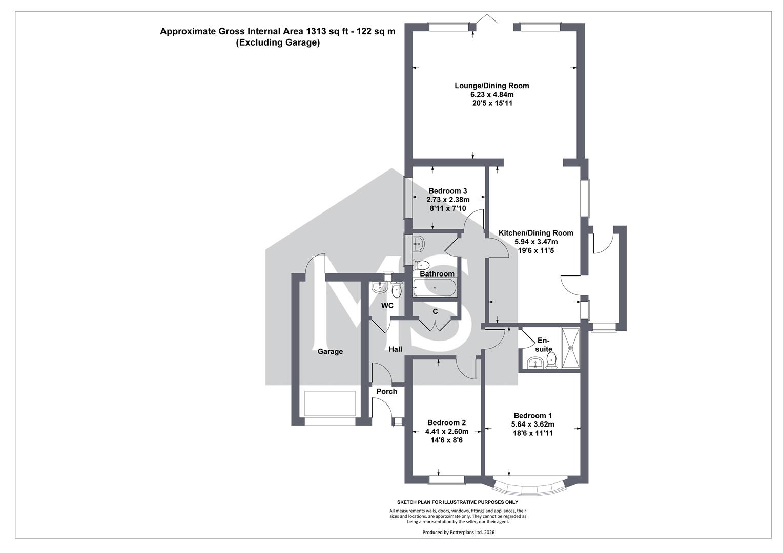
- Extends to over 1300 sqft
- Three bedrooms, Bed 1 en-suite
- Superb open plan kitchen/dining
- Highly sought after location
Description
15 Aunums Close has been newly renovated so as to create a somewhat larger than average bungalow extending to over 1300 sqft. The extensive accommodation allows for an abundance of natural light from it's lovely south facing position, living and dining space is particularly impressive, there are three bedrooms including en-suite shower room together with a separate bathroom and cloaks/WC. The generous rear extension, complete with bi-fold doors, seamlessly connects the indoor space to the south-facing rear gardens. Double glazed, gas central heating from a new boiler, highly sought after residential area, offered for sale with no onward chain.
Floorplans
EPCs
Other Files
Similar Properties
Book your local agent to value your home
Get the most accurate valuation based on:
- Your unique property features
- Their in-depth knowledge of the area
- The latest changes in the local market